Postitus ilmus 24. aprillil 2018 Postimees Kodustiil portaalis (LINK).
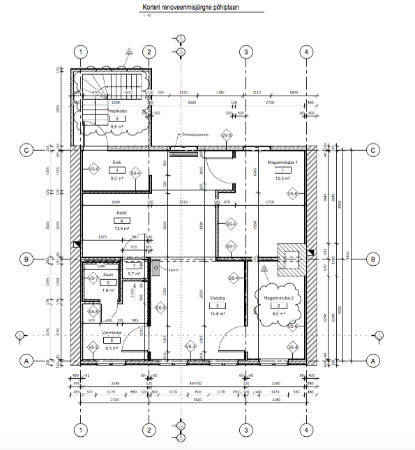
Meie kapitaalremonti vajavas korteris tuleb ette võtta nii tehnosüsteemide olulist muutmist (ahjude välja lammutamine) ja lisamist (ventilatsioonisüsteem, õhksoojuspump, kamin) kui ka kandvate konstruktsioonide muutmist (ava suurendamine kandvas seinas), mis on seaduse järgi hoone oluliste omaduste muutmine. Need tööd nõuavad enne ehitusega alustamist kohalikule omavalitsusele ehitusteatise ja vähemalt eelprojekti staadiumis renoveerimisprojekti esitamist. Teisi töid, mis ei kuulu hoone oluliste omaduste muutmise klausli alla, võisime õnneks siiski kohe tegema hakata, näiteks magamistoa valmis ehitada. Seega tegelesime esialgu kiiremate tegemist vajavate töödega, mis projekti ei nõua, ning projekteerija otsinguid alustasin oktoobris, ligikaudu 4 kuud pärast korteri ostu.
Ümberehituse või ulatusliku renoveerimise jaoks projekteerija leidmine ei olnud eriti lihtne, sest vähemalt internetis ringi tuulates jäi küll mulje, et Eesti inimene lihtsalt ei telli sellist teenust, teeb ümberehitustööd “salaja” ära ja loodab parimat. Meie tahtsime asju aga korrektselt ajada, sest vastasel juhul ei ole mõtet näiteks õnnetuse puhul kindlustuselt kompensatsiooni loota ja samuti võib korteri müümine osutuda keeruliseks, kui tulevane ostja soovib saada pangast laenu, kuid pank ei ole nõus laenu andma, kuna tagatisvarale on tehtud omavoliliselt ebaseaduslikke lisandusi/muudatusi, mis võib muuta tagatisvara seisukorra riskantseks. Seega tuli projekti koostamise ja ehitusteatise esitamise teekond ette võtta.
Suur oli minu imestus, kui korteri renoveerimisprojekti hinnapakkumised andsid välja keskmise suurusega eramaja projekti maksumuse. Samuti oli huvitav täheldada, et Eesti ettevõtetel läheb vähemalt projekteerimise alal vist väga hästi, sest minu hinnapäringutele 75% juhtudest vastuseid ei tulnud. Võimalik, et ettevõtetel ei olnud huvi lihtsalt sellist tööd vastu võtta, sest tagantjärele vaadates oli tegu üpris keeruka ja palju kannatust nõudva tööga. Saadud pakkumised jäid vahemikku 1500 kuni 4000 eurot (pluss käibemaks). Need summad meile eriti ei meeldinud. Õnneks leidsime endale sobiliku hinnaga ühe tuttava, kes on viimase kursuse inseneritudeng ning töötab projekteerimisfirmas. See oli talle esimene taoline suurem “päris”töö, seega saime teenuse tunduvalt toredama hinnaga, ent suurepärase kvaliteediga, kuna projekti koostaja oli äärmiselt püüdlik, põhjalik ja hoolikas, lisaks tegid temaga koostööd kaks allkirjaõiguslikku projekteerijat-konstruktorit.
Projekteerija käis esimest korda korterit vaatamas ja mõõtmas oktoobri lõpus. Kohtusime temaga veel novembris ning detsembris saime ära esitada projekti esimese versiooni koos ehitusteatise ja korteriühistu nõusolekuga, mille saamine samuti vahepeal närvi korralikult mustaks ajas. Enda arvates olime kõik teinud väga korrektselt ning lootsime kõik kooskõlastused (linnavalitsuselt, Päästeametilt) esimese ringiga kätte saada. Kui Päästeameti kooskõlastuse saime kohe kätte, siis linnavalitsusega asjad otseloomulikult nii kergelt ei läinud.

Märkusi oli lisanud ametlikku kirja arhitektuuri- ja linnakujundusteenistuse arhitekt, ehitisregistri spetsialist, kultuuriväärtuste teenistuse spetsialist ja lubade- ja registriteenistuse spetsialist. Valdav enamus märkusi olid asjalikud, kuid vorm ja esitusviis jätsid kohati soovida. Sooviti veel mõnda lisajoonist ja lisaselgitust ning samuti lisaandmeid kogu maja kohta. Parandasime kõik vajalikud kohad ära, projekteerija suhtles telefonitsi veel vastavate ametnikega, et kõik õigesti saaks. Kuna vahepeal olid jõulupühad ja eksamisess, siis teise versiooni esitamiseni jõudsime jaanuari lõpus. Õnneks ei olnud meil ka kiire, sest tegelesime vahepeal nagunii teiste prioriteetsemate töödega ning kuna elukaaslane on vaid paar nädala kaupa Eestis, siis ei juhtunud ootamisest midagi hullu. Veebruari alguses saime projektile järjekordse eitava vastuse.
See eitav vastus ajas närvi juba rohkem mustaks, kuna kohati noriti asjade kallal, mis eelmise tagasiside järgi “õigeks” olime parandanud, kuid mis müstilisel kombel enam õiged ei olnud. Siinkohal soovitaks teistel ametkondadega suhelda ainult kirjalikult taasesitatavas vormis. Muuhulgas hakati meilt nõudma kogu hoone jooniseid – kes selle töö eest maksma peaks, et kogu maja reaalne olukord ära projekteerida? Lisaks nõuti hoovis paiknevate kuuride seadustamist ja öeldi, et enne seda ei tohi me esitada ehituse lõppedes kasutusteatist. Jätkuvalt olid osad kommentaarid KOV-ist tulnud kirjas täis ebakorrektseid mõisteid (näiteks proovi siis mõista, kas üldpinna all mõistetakse üldkasutatavat pinda või hoone suletud netopinda ehk kogupinda?), mis muutsid tagasisidest arusaamise ja paranduste tegemise suureks peavaluks. Võib-olla oli tegu meie teadmatuse ja oskamatusega, aga usun, et ametnikult korrektsete mõistete kasutamist nõuda ei ole just palju.
Seega võtsin Riigi Teataja lahti ja kirjutasin konkreetsetele paragrahvidele ja lõigetele tuginedes KOV-ile vastu pika infonõude, et aru saada, miks me midagi tegema peame (kogu maja projekteerimine?) ja mida täpselt parandama peab. Jõudsime seeläbi teatud kompromissideni (näiteks: kogu maja joonistena võima kasutada Rahvusarhiivis olevaid vanu jooniseid). Lisaks käis projekteerija pärast paranduste tegemist ja enne ehitusteatise uuesti esitamist isiklikult kommentaaride tegijatega linnavalitsuses kohtumas, et kõik topelt üle kontrollida ja vältida üksteisest mööda rääkimist.

Tundub, et sellest kõigest oli kasu. Ei tea, kas linnavalitsus väsis meiega tegelemisest ja minu tüütutele kirjadele vastamisest ära või sai projekt lõpuks piisavalt heaks, aga igal juhul sai projekti kolmas versiooni juba järgmisel päeval linnavalitsuselt kooskõlastuse. Märtsi keskel sai oktoobris alanud töö viimaks lõpetatud. Lõpuks ometi! Rõõm oli piiritu, sest kevad koputas juba uksele ja pooleli olev vannituba ootas ahju väljalammutamise järel. Kuna oli oht, et ahju välja lammutamise järel võib põrand veidi tõusta, ei saanud enne vannitoa põranda ehitusega jätkata, kui ahi korteri keskelt minema sai viidud. Selle jubeda tööga me eelmise nädala lõpus ka alustasime.
Järgmistel kordadel teen juttu sellest, kuidas oleme restaureerinud uksi-aknaid ja mööblit.