Seda postitust tasub kindlasti kõigil minu kodublogi huvilistel lugeda, sest siin blogis pole ma planeeringust varem nii põhjalikult juttu teinud. 😉 Postitus ilmus 26. märtsil Postimees Kodustiil portaalis (LINK).
Meie kodu asub Tartu kesklinnas miljööväärtuslikus 8 korteriga puumajas, mis ehitati oletatavasti 1880. aastal. Meie korter asub 2. korrusel, sinna viib 18 astmega “taevatrepp” läbi privaatse trepikoja. Korter on kahest otsast piiratud 40 cm paksuse punastest tellistest tuletõkkemüüriga, ülejäänud välisseinad on meie piirkonnale iseloomulikud püstpalkseinad. Viimane kapitaalremont valmis 1977. aastal.
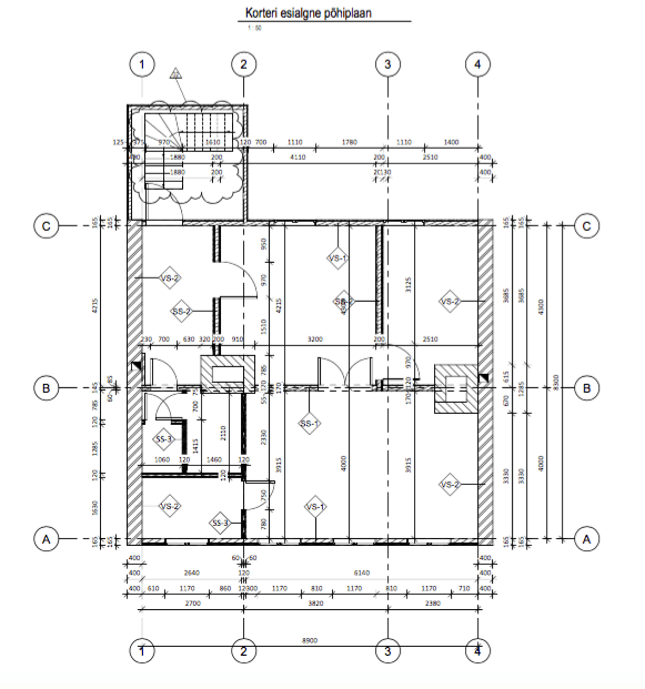
Juba enne korteri ostu oli selge, et korteri põrandaplaan peab omajagu muutuma. Meie korterisse siseneja astub praeguse planeeringu järgi trepikojast otse kööki: paremat kätt on kohe kraanikauss ja vasakut kätt külmkapp. Seejärel sisenetakse üht läbikäidavasse tuppa, millele on raske nimetust anda: ostuhetkel oli selles toas kolm ust, üks aken, üks voodi, diivanilaud, kaks raamatukappi, kirjutuslaud, peeglilaud, suur riidekapp, tugitoolid, üks osa ahjust; ühesõnaga kõikvõimalike tubade mööbel. Läbikäidavast “nimeta” toast oli võimalik siseneda väiksesse magamistuppa, kuhu peale kapikese, voodi, ahju ja veel ühe imelise, suure, ruudukestega akna suurt midagi ei mahtunud, ja läbi kahepoolsete paraaduste ülimalt avarasse elutuppa, kus ootas ees nõukogudelikult klassikaline sektsioonkapp, ahi, 3 imelist akent, diivan ja paar tugitooli. Suurest elutoast viis kitsas uks pisikesse kaheruutmeetrisesse aknaga kambrikesse, mida oli kasutatud magamistoana. Peaaegu et mikroskoopilisse WC-sse ja paremaid päevi näinud kasutuskõlbmatu vanni ja puuküttega boileriga vannituppa pääses läbi köögi. Kolm tuba, 65 ja pool ruutmeetrit tõelist muuseumi oli see, millest voolida oma kodu.

Juba siis, kui me esimest korda seda korterit vaatamas käisime, tekkisid mul ideed, kuidas antud korteri planeeringut muuta, et luua sellest modernne ja mugav kodu, kuhu kõik vajalik kavalalt ära mahutada. Selge oli see, et korterisse peab tekkima esik koos suure sisseehitatud garderoobikapiga. Köögi ja “nimeta” toa vaheline sein tuleb maha lammutada. L-kujuline köök tuleb kolmest küljest seinaga piiratud nišši, et luua pooleldi avatud ala, kust pääseb mugavalt nii söögi”tuppa” kui ka elutuppa.
Magamistoa sein ja ukseava peab liikuma, et muuta tuba vähem piklikuks ja mahutada sinna kõik tarvilik. Kindlasti oli plaan magamistuppa luua teine suur sisseehitatud riidekapp: seetõttu näete uue planeeringu joonisel mõnevõrra veidrat nurgelist seina. Magamistoa poolelt loob see avarust, kuna kapp on peidetud seina sisse, kuid samas avatud köögi-elutoa-söögitoa poolelt loob väikese privaatse sisenemistee magamistuppa. Magamistoa ukse paigutasime elutoast võimalikult kaugele, et vältida magamistuppa müra kandumist, samuti on magamistoa aken suunatud hoovi, mitte tänava poole.

Senine hiiglaslik kolme akna ja paraadustega elutuba tuleb jagada kaheks, et luua eraldi väike, 8-ruutmeetrine kontorituba, mille saab tulevikus muuta lastetoaks. Kuna mina teen aeg-ajalt tööd kodus, siis vajan ma rahulikku nurgakest, kus rahulikult kirjutada või fotosid töödelda. Elutuba tuleb muuta pooleldi avatud alaks: laiendada tuleb ukseava nii kõrgusesse kui ka laiusesse. Nii tekib üks suur pooleldi avatud ruum, mis sisaldab endas nii elutoa ja söögitoa osa kui ka kööginišši. Sellesse avatud ruumi langeb loomulikku valgust ühest hoovipoolsest põhjakaarde suunatud aknast ning kahest tänavapoolsest aknast, kuhu paistab pärastlõunane päike.


Vaikselt ehitustöödega alustades ja konstruktsioonidele paremini ligi pääsedes sai kinnitust meie hüpotees, et kogu korteri põrandate ulatuslikku vajumist põhjustab 1970. aastatel kööki ehitatud ahi. Ahi on korraliku toestuseta ning ehitatud koha peale, mis ei ole mõeldud kandma ligi 3-tonnise massiga kivihunnikut. Algupäraselt oli köögis vaid puupliit koos väiksema ja kergema soemüüriga. Samuti on ahju ehituseks eemaldatatud tõenäoliselt 2 kandvat tala korterit läbivast kandvast seinast. Asendatud ei ole neid millegagi ja sedaviisi ongi meie korter 40 aasta jooksul vabalt vajuda saanud. Meie all elavate naabritega vesteldes selgus, et kui nemad kunagi üht mittekandvat seina eemaldada tahtsid, hakkas lagi miskipärast vajuma ning nad pidid seina asemele paigaldama talad. Ei ole ka imestada, kui see mittekandev sein kandis suurt osa meie mitmetonnisest ahjust… Ma imestan siiani, et see ahi korruse võrra allpool maandunud ei ole. Ahju lammutamine annab meile aga juurde ligi ruutmeetri pinda, mille saame ära kasutada pisikese tehnoruumi tarbeks, kuhu paigutame peitu veesõlme, elektriboileri ja pesumasina.
WC ja vannituba saavad juurde omajagu ruumi ja ühe akna senise minitoa arvelt. Vannituppa sisenetakse uue planeeringu järgi elutoast. Kaheksale ruutmeetrile mahutame ära WC, kaks valamut, dušiniši ja pisikese leiliruumi. Vannitoa planeeringu paika saamine oli minu jaoks kõige suurem peamurdmine, kuna esialgse plaani järgi tahtsime sinna mahutada valamukapi, WC, leiliruumi, duši, boileri ja pesumasina. Samuti oli nurkadega kehv lugu, kuna ühes seinas on praktiliselt nurgas uks ja teises piirab nurga kasutust (näiteks dušinurga tarbeks) lähedal asuv aken. Lõpuks jõudsime sellise avatud lahenduseni, kus iga sentimeeter seina on läbi mõeldud ja ära kasutatud ning silmariivavad esemed peidetud hoopis eraldi tehnoruumi, kuhu sisenetakse köögist.
Järgmistes postitustes räägin lähemalt sellest, milline saab olema meie kodu siseviimistlus ja sisustus ning teen pikemalt juttu tehnolahendustest – vesi, elekter, gaas, küte ja ventilatsioon –, mille valinud oleme.
PS. Järgmine postitus ilmub Postimehes juba täna!